Эскалатор и бегущая дорожка
Обзор эскалатора и движущаяся дорожка
Обзор эскалатора
Линия серийных эскалаторов Fujita воплощает современную городскую эстетику, используя передовые материалы и передовые инженерные технологии как отечественного, так и зарубежного производства. Наши эскалаторы имеют совершенную конструкцию, изысканные лестницы, гладкие конвейерные ленты и красивый внешний вид. Идеально подходит для мест с интенсивным движением транспорта, таких как торговые центры, супермаркеты, метро и аэропорты, добавляя захватывающий вид с мобильных устройств в крупномасштабные архитектурные проекты. используйте ступенчатые ролики большого размера, работающие с минимальным шумом и исключительной долговечностью, а ферма изготовлена из стали премиум-класса и имеет уникальную конструкцию, обеспечивающую высокую прочность и устойчивость к коррозии.
Краткое описание движущейся прогулки
Fujita Moving Walk — это востребованное решение, которое без особых усилий поднимает процесс совершения покупок на новый уровень комфорта и эффективности. Благодаря своей неизменной популярности, превосходному дизайну и качеству, это инновационное решение является идеальным выбором для решения проблем, связанных с большими пассажиропотоками и длительными прогулками, а также для удовлетворения широкого спектра потребностей, включая тележки для багажа, детские коляски, магазины. тележки и транспортные средства для инвалидов. Обеспечивая непревзойденное удобство и простоту использования, Fujita Moving Walk является идеальным решением для улучшения общего впечатления от покупок и прогулок.
Мы стремимся обеспечить высочайшее качество и превосходную производительность всей нашей продукции. Если вы хотите узнать больше о наших проблемах с эскалаторами и бегущими дорожками, а также о строительных проектах, пожалуйста,Связаться с наминемедленно, и мы предоставим вам индивидуальное обслуживание.
Преимущество
Приверженность Fujita вашей безопасности
В Fujita мы понимаем, что безопасность имеет первостепенное значение для наших уважаемых клиентов. Вот почему наши лифты разработаны в соответствии со строгими промышленными стандартами, обеспечивая высочайший уровень безопасности. Благодаря исключительному немецкому мастерству мы стремимся обеспечить рынок лифтов более безопасной продукцией.
Предотвращение непреднамеренного движения автомобиля с помощью устройства UCMP
Наши лифты оснащены устройством UCMP (предотвращение непреднамеренного движения автомобилей). Эта усовершенствованная система гарантирует, что когда лифт останавливается на лестничной площадке и открываются двери, любое несанкционированное движение кабины без специального приказа будет мгновенно обнаружено. Устройство UCMP эффективно блокирует подобные движения, гарантируя безопасность наших пассажиров.
Удаленный мониторинг через Интернет
В Fujita мы используем возможности Интернета вещей (IoT), чтобы обеспечить вам непревзойденное удобство и безопасность. Наша ведущая в мире система Интернета вещей обеспечивает автоматический мониторинг, проверку и управление всеми лифтами в здании. Регулярно собирая данные и обеспечивая своевременное устранение неисправностей, мы обеспечиваем постоянную безопасность наших лифтов.
Устройство для предотвращения столкновения и схода с рельсов дверей автомобиля.
Для дальнейшего повышения безопасности пассажиров лифты Fujita оснащены новейшим устройством, предотвращающим столкновение и сход дверей кабины с рельсов. Эта инновационная функция гарантирует, что в случае удара двери будут защищены и останутся на заданном пути, гарантируя максимальную безопасность для наших пассажиров.
Система инфракрасных световых завес для повышения безопасности
На входе в каждый лифт Fujita установлена система инфракрасных световых завес. Эта передовая технология быстро обнаруживает присутствие любого человека или объекта в зоне обнаружения. Быстро реагируя на любые обнаруженные препятствия, система инфракрасных световых завес гарантирует личную безопасность пассажиров при входе или выходе из кабины лифта.
Ваша безопасность — наш главный приоритет в Fujita.
Спецификация
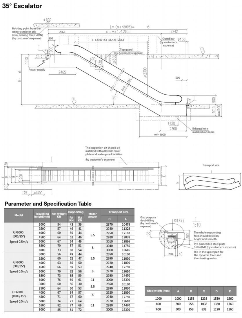
ФудзитаОбзор эскалаторов и движущихся дорожекТехнический паспорт.
Индивидуальные услуги
Мы можем предоставить вам уникальные индивидуальные услуги в соответствии с вашими потребностями.
Сценарий применения
Обзор эскалатора
Подходит для торговых центров, супермаркетов, метро, аэропортов и других мест с большим пассажиропотоком.
Краткое описание движущейся прогулки
Подходит для аэропортов, торговых центров, супермаркетов, больших клубов и т. д.
Услуги
Комплексный и глобальный опыт высококачественного обслуживания
Лифты Fujita предлагают комплексное и высококачественное обслуживание по всему миру. У нас есть единый стандарт обслуживания и процесс технического обслуживания, гарантирующий, что ваш лифт будет поддерживаться в соответствии с самыми высокими стандартами. Наш стандарт проверки является более комплексным и гарантирует безопасность и производительность вашего лифта.
Единый и стандартизированный сервис
Как и в случае с другими видами транспорта, регулярное техническое обслуживание необходимо для обеспечения безопасности и производительности вашего лифта. С Fujita вы можете положиться на нашу всемирную сеть маркетинговых услуг, которая предоставит вам эксклюзивный сервис. Мы удовлетворяем все ваши требования к обслуживанию и техническому обслуживанию от начала и до конца срока службы продукта. Наша круглосуточная служба поддержки клиентов посвящена вашему обслуживанию.
Индивидуальные планы обслуживания
Файл данных каждого клиента обрабатывается индивидуально, что позволяет нам разрабатывать эксклюзивные планы обслуживания, отвечающие вашим конкретным потребностям. Наша цель — предоставить вам индивидуальное обслуживание, отвечающее уникальным требованиям вашего лифта.
Интеллектуальный удаленный мониторинг
Fujita использует передовые интеллектуальные системы для удаленного мониторинга работы лифтов. Это позволяет нам полностью контролировать информацию о безопасности, обеспечивая безопасную среду для пользователей.
Выделенная команда обслуживания
Наша штатная сервисная команда доступна 24 часа в сутки, готова принять заказы и оперативно реагировать на ваши требования. Мы отдаем предпочтение быстрым и эффективным решениям для своевременного удовлетворения ваших потребностей.
Эскалаторремонт
Если вашему эскалатору более 10 лет, использование вашего здания изменилось, вы получаете жалобы или конкурируете с более новыми зданиями, тогда ваш лифт может получить выгоду от Fujita.Модернизация эскалатора.
Часто задаваемые вопросы
Вопрос 1. О цитате?
Пожалуйста, отправьте нам запрос здесь, мы ответим вам в течение 1 часа. Вы получите наше предложение немедленно, если предоставите гораздо больше спецификаций по вашему запросу.
В2. Торговые условия и условия оплаты?
FOB/CFR/CIF/CPT/CIP/DAT/DDU и TT/LC/ WESTERN UNION...
Вопрос 3. (Весь лифт) Какая информация абсолютно необходима, прежде чем узнать цену?
A. Грузоподъемность или количество человек? (например, 6 человек по 450 кг, 8 человек по 630 кг, 10 человек по 800 кг и т. д.)
Б. Сколько этажей/остановок/дверей?
C. Какова номинальная скорость?
Д. Это будет с машинным помещением или без машинного помещения?
E. Какова ширина ступеньки, высота подъема и угол наклона, если это эскалатор?
Вопрос 4. (Запасные части лифта и эскалатора) Какая информация необходима, прежде чем запросить цену?
(1) Пожалуйста, сообщите нам название бренда лифта или эскалатора.
(2) Пожалуйста, пришлите нам изображение этой запасной части, особенно таблички с техническими характеристиками.
(3) Пожалуйста, сообщите нам количество заказа. (сколько штук вам нужно?)
Вопрос 5. А что насчет упаковки?
Все детали лифта будут упакованы в стандартные экспортируемые фанерные коробки. Как правило, контейнера 1*20 футов достаточно для загрузки 1 единицы 10-ступенчатого подъемника, контейнера 1*40 достаточно для 3-х 10-ступенчатых подъемников.
Вопрос 6. Как быть с установкой и обслуживанием лифта?
Обычно мы поручаем эту работу нашим местным агентам. Но если у нас нет агента в вашем городе, мы можем приехать и помочь вам с монтажными работами, и мы предпочитаем обучить вашу команду тому, как хорошо выполнять эту работу, если вы хотите наладить с нами длительное сотрудничество.
Международная доставка
Мы предлагаем доставку по всему миру всех запчастей для лифтов и эскалаторов, отвечающих потребностям вашего бизнеса. Будь то по морю, по воздуху или по международной экспресс-логистике через надежных поставщиков, таких как DHL, FEDEX и UPS, мы обеспечиваем безопасную доставку. Чтобы получить предложение, просто укажите свое имя, адрес электронной почты, подробный адрес, характеристики продукта и требования. Наша команда оперативно свяжется с вами и предоставит исчерпывающую информацию, включая наиболее подходящий способ доставки (быстрый, безопасный и конфиденциальный) и варианты доставки.
Сопутствующие товары
Пассажирский лифт、Домашний лифт、Панорамный лифт、Грузовой лифт、Автомобильный лифт、Больничный лифт、Эскалатор и бегущая дорожка、Подъемник для инвалидных колясок






